KTMMOB Mimarlar Odası, su taşkınlarının kader olmadığına işaret ederek, “sünger şehir” yaklaşımı ve daha birçok doğa ile barışık vizyon ile, ekolojik mimarlıkla desteklenen ve kurumsal iş birliğine dayanan bir planlama anlayışıyla, suya karşı değil suyla birlikte tasarlanan kentlerin mümkün olduğunu kaydetti.
KTMMOB Mimarlar Odası Başkanı Onur Olguner, yazılı açıklamasında, son günlerde ülkede etkili olan yoğun yağışlar ve buna bağlı taşkınların, yalnızca olağanüstü meteorolojik olaylar olarak değil; uzun yıllardır biriken planlama, mimarlık ve yapılaşma sorunlarının doğrudan sonucu olarak değerlendirilmesi gerektiğini belirtti.
Yaşanan can ve mal kayıplarının, suyun doğal döngüsünü dışlayan mevcut imar anlayışının artık sürdürülemez olduğunu açık biçimde ortaya koyduğuna işaret eden Olguner, şöyle devam etti:
“Mimari ve kentsel ölçekte temel problemlerden birisi; yağmur suyunun hızla yüzey akışına dönüşmesine neden olan yoğun ve kesintisiz sert zemin kullanımıdır. Dere yataklarının kaçak yapılaşmaya açılması, doğal eğimlerin ve mikro havzaların göz ardı edilmesi, kentsel alanların suyu tutma ve yavaşlatma kapasitesini ortadan kaldırmıştır. Bu nedenle çözüm, yalnızca boru, kanal ve pompa sistemlerine odaklanan müdahaleleriyle sınırlı kalamaz.
Bu noktada özellikle vurgulanması gereken yaklaşımlardan birisi, 2023 yılında Dünya Ekonomik Forumunda ödül almış olan Kongjian Yu’nun ‘sünger şehirler’ modeli olabilir.
-Sünger şehir
Sünger şehir; kentin yağmur suyunu hızla uzaklaştıran bir yüzey değil, suyu emen, depolayan, filtreleyen ve kontrollü biçimde toprağa geri veren bir ekosistem olarak tasarlanmasını ifade eder. Bu yaklaşımda amaç; yağmur suyunu sorun olarak görmek yerine, kentsel yaşamın doğal bir parçası haline getirmektir. Kent, adeta bir sünger gibi suyu içine alır, yavaşlatır ve taşkın riskini en aza indirir.”
Olguner, belediyelerin alacağı kararların, sünger şehir yaklaşımının hayata geçirilmesinde kilit rol oynadığına işaret ederek, yerel yönetimlerin yapması gereken uygulamaları şöyle sıraladı:
“Yerel yönetimler; geçirimsiz yüzey oranlarını düşürecek politikalar belirlemeli, parsel bazında yağmur suyu sızdırma ve depolama sistemlerini zorunlu hale getirmelidir. Otoparklar, yaya yolları ve kamusal alanlarda geçirgen kaplamalar kullanılmalı; yağmur bahçeleri, biyolojik hendekler, sızdırma havuzları ve yeşil koridorlar planlama kararlarıyla tanımlanmalıdır. Yeşil çatı ve yeşil cephe uygulamaları da kentsel ölçekte su tutma kapasitesini artıran önemli mimari araçlardır.
Bu yapılacak adımlar, yalnızca belediyelere terk edilecek bir görev değil, merkezi hükümetin de lojistik ve ekonomik destekleri sağlayacağı ülkesel bir vizyonu oluşturmak zorundadır.
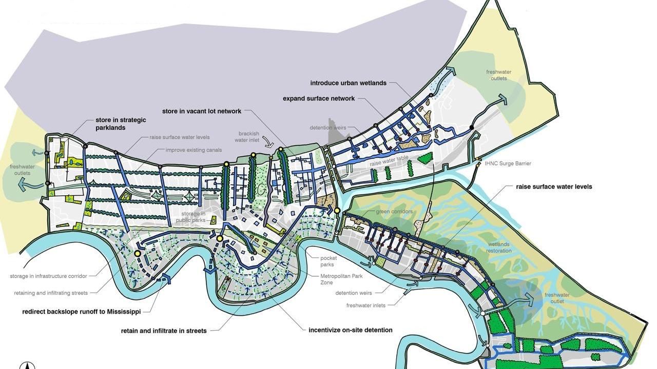
New Orleans örneği, sellere karşı yapılması gereken yaklaşımının önemini açık biçimde ortaya koymaktadır. Katrina Kasırgası sonrasında kent, yalnızca pompa ve tahliye sistemlerine yatırım yapmakla yetinmemiş; kamusal alanları su tutucu tasarımlarla yeniden tasarlamış, geçirgen yüzey oranlarını artırmış ve yağmur suyunun mahalle ölçeğinde tutulmasını temel politika haline getirmiştir. Bu deneyim, suyla mücadele eden değil, suyla birlikte yaşayan kentlerin daha dirençli olduğunu göstermektedir.
Ekolojik mimarlık, sünger şehir anlayışının yapı ölçeğindeki karşılığıdır. Topografyaya uyumlu yerleşim kararları, doğal drenaj hatlarının korunması, yerel bitki örtüsünün kullanımı ve toprağın geçirgenliğini artıran peyzaj tasarımları; taşkın riskine karşı en etkili ve kalıcı çözümler arasındadır.”
Olguner, tüm bu süreçlerin başarısının, merkezi hükümet ile yerel yönetimler arasındaki güçlü iş birliğine bağlı olduğuna işaret ederek, merkezi idarenin, iklim değişikliği odaklı ülkesel politikalar oluşturması, belediyelere teknik ve mali destek sağlaması, havza ölçeğinde bütüncül planlama modellerini teşvik etmesi gerektiğini kaydetti.
Yerel yönetimlerin ise bu çerçeveyi sahada uygulayan asli aktörler olması gerektiğine dikkat çeken Olguner, şöyle devam etti:
“KTMMOB Mimarlar Odası olarak altını çizerek ifade ediyoruz: Taşkınlar kader değildir. Sünger şehir yaklaşımı ve daha birçok doğa ile barışık vizyon ile, ekolojik mimarlıkla desteklenen ve kurumsal iş birliğine dayanan bir planlama anlayışıyla, suya karşı değil suyla birlikte tasarlanan kentler mümkündür.
Bu çözümler için merkezi hükümet ve yerel yönetimler mutlaka kamu niteliğinde olan meslek odalarını süreçlerin içerisine katmalı, mimar, şehir plancıları ve mühendisler ile birlikte bu önemli vizyonu yapılandırmalıdır.”




